巨荣光明里-售楼部

巨荣光明里
  • 巨荣光明里

  • 27000元/㎡

  • 住宅

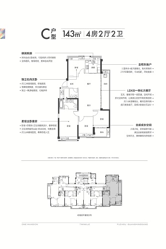
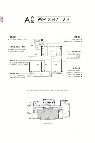
  • 99-143

  • FZ许20230009

  • 福州巨荣置业有限公司

额外3%折扣优惠
包含一房一价/余房信息等

立即领取

基本信息

楼盘名称:巨荣光明里 在售

楼盘特点:二环内 智能住宅 人气楼盘 配套纯熟 公园

参考单价:27000元/㎡ 

物业类型:住宅

开发商:福州巨荣置业有限公司

区域位置:二环内- 台江- 金融街

楼盘地址:长乐路东侧、排尾路北侧

销售信息

最低首付:15%

楼盘户型:3室户型 (1) , 4室户型 (2) 

最新开盘:2023.6

交房时间:2025.6

售楼处地址:福州市台江区长乐路东侧、排尾路北侧 

小区规划

建筑面积:14442㎡

规划户数:98户

容积率:2.5 

物业管理费:3.88元/㎡

物业公司:厦门市万科物业服务有限公司福州分公司

车位数:130 (地上:12 个 地下:118个)

车位比:1:1.2

区位图

户型图

样板间

效果图

实景图

额外折扣优惠

巨荣光明里

X
折扣领取